Quadrilocale in vendita

Soresina, Via Giacomo Matteotti
€ 119.000
4 locali 4 locali
140 Mq 140 Mq
1 bagno 1 bagno

Quadrilocale in vendita

Soresina, Via Giacomo Matteotti

Descrizione annuncio

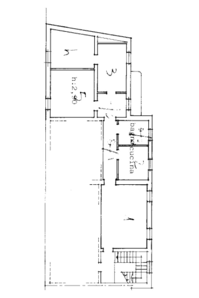
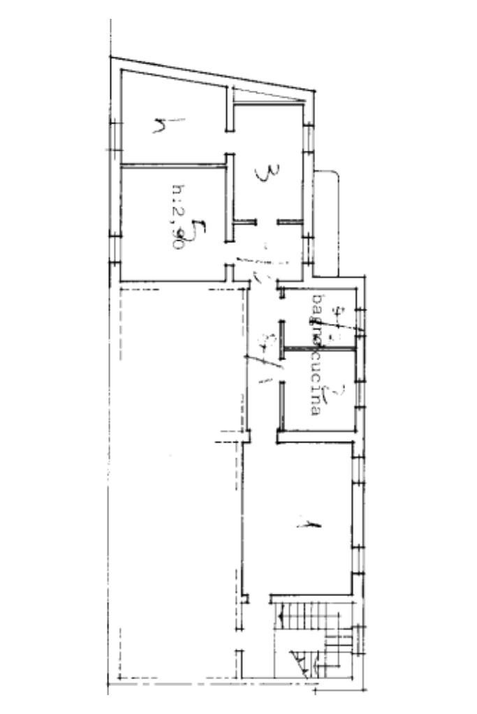
SORESINA: al secondo piano di una palazzina residenziale situata in zona centrale e comodamente servita, proponiamo un ampio quadrilocale ideale per famiglie o per chi desidera ambienti confortevoli e ben organizzati.

L’appartamento si apre su una luminosa zona giorno open space che unisce armoniosamente soggiorno e cucina, creando un ambiente conviviale, perfetto sia per la vita quotidiana sia per ospitare amici e parenti. Le grandi finestre garantiscono un’ottima luminosità naturale durante tutto l’arco della giornata, rendendo gli spazi ariosi e accoglienti.

La zona notte è composta da tre camere da letto, tutte di buone dimensioni. Il bagno finestrato è dotato di vasca, una soluzione ideale per chi cerca comfort e praticità.

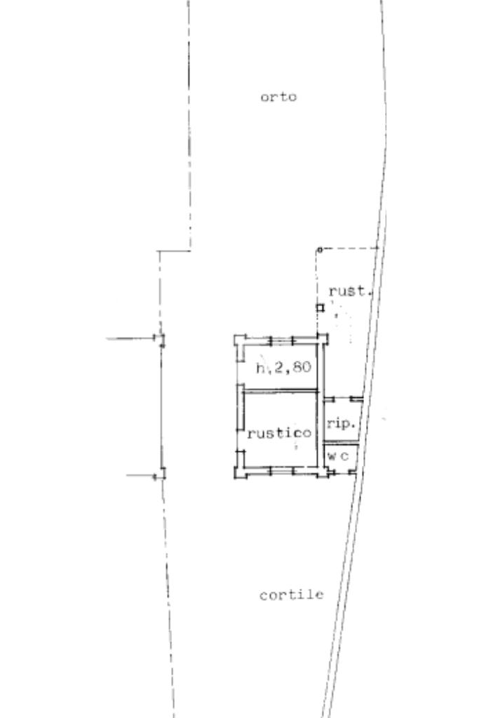
Uno dei punti di forza dell’immobile è il giardino privato, raro per una soluzione al primo piano, perfetto per chi ama godersi uno spazio esterno esclusivo, per momenti di relax, cene estive o attività all’aria aperta. A completare la proprietà troviamo una cantina utile come locale accessorio e un box auto privato, che garantisce praticità e sicurezza.

L’immobile rappresenta una scelta ideale per chi desidera un’abitazione già pronta da vivere, in un contesto tranquillo e vicino ai principali servizi, alle scuole e alle vie di collegamento della zona.

Mostra tutto

Nelle vicinanze

Trasporto pubblico Trasporto pubblico
Soresina
Soresina
230 m
Scuole Scuole
Istituto Comprensivo Giacomo .Bertesi
160 m
Farmacia Farmacia
Farmacia Lombardini-Ghezzi
210 m
Farmacia Solzi di Ilaria Rossi
270 m
Farmacia Segalini Dr. Camillo
330 m
Ospedali Ospedali
Guardia Medica
460 m
Polo sanitario Nuovo Robbiani
1,2 Km
Supermercati Supermercati
Famila
470 m
Lidl
660 m
U2
800 m
Coop
890 m
Ristoranti Ristoranti
Ristoranti
140 m
Ristorante il Binario
190 m
Mostra tutto

Caratteristiche

Rif.:
61141980
Piano:
2 di 2 (ultimo Piano)
Box:
1
Posti auto:
1
Camere da letto:
3
Arredamento:
Assente
Mostra tutto
Prezzo Prezzo
€ 119.000
Rata mutuo Rata mutuo
€ 563 / mese
Spese annue Spese annue
€ 0
Proponi il tuo prezzoProponi il tuo prezzo

Classe Energetica

G
G
G
G
G
G
G
G
G
EP globale non rinnovabile:
341.78 kW h/m² anno
Anno di costruzione:
1980
Riscaldamento:
Autonomo
Tipo impianto:
A radiatori
Tipo alimentazione:
Metano

Ti interessa visionare l'immobile?

Fissa un appuntamento  Fissa un appuntamento

Richiedi informazioni

Clicca su Leggi per aprire l'informativa
* Questi campi sono obbligatori

Calcola il tuo mutuo

Semplice e senza impegno
Anticipo

( % )
Mutuo

( % )

pochi semplici passi

inserisci i tuoi dati
Questionario completato
Grazie per aver richiesto un appuntamento senza impegno con un nostro Consulente del Credito e Assicurativo.

Hai inserito correttamente tutti i dati necessari e a breve riceverai una e-mail con un link da convalidare per inviare i tuoi dati.
Affiliato
Tecnosoncino Srl
Via Padre Mario Zanardi, 1 26029 Soncino (CR)

Il nostro staff


  • Michele Tavelli
    Affiliato

  • Morris Belloni
    Collaboratore
Via Padre Mario Zanardi, 1 26029 Soncino (CR)
Zona: Soncino - Romanengo - Ticengo
Mostra su mappa
Orari: da lun. a ven. 9:00-12:30/ 14:30-20:00 - sab. 9:00-12:30 / 14:30-18:00
Affiliato
Tecnosoncino Srl
Via Padre Mario Zanardi, 1 26029 Soncino (CR)

2026 Tecnocasa Franchising S.p.A. - P. IVA 08365160152 - Via Monte Bianco 60/A 20089 Rozzano (MI). Ogni agenzia ha un proprio titolare ed è autonoma. Privacy policy | Policy utilizzo | Cookie policy