Casa indipendente in vendita

Soncino, Via bastioni Balestrieri
€ 219.000
4 locali 4 locali
150 Mq 150 Mq
2 bagni 2 bagni

Casa indipendente in vendita

Soncino, Via bastioni Balestrieri

Descrizione annuncio

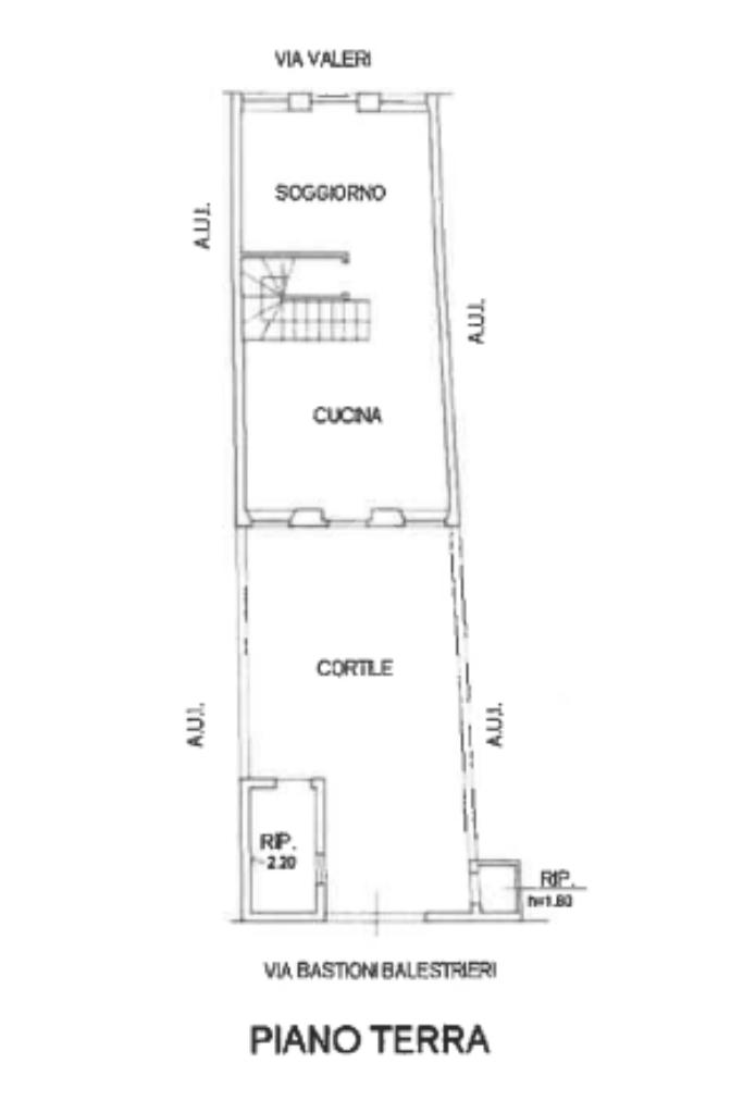
SONCINO: proponiamo in vendita una casa indipendente completamente ristrutturata disposta su tre livelli, situata in pieno centro paese, ideale per chi cerca comfort, spazio e indipendenza.

Al piano terra si sviluppa la zona giorno, composta da un luminoso soggiorno con area pranzo e una cucina open space, ideale per momenti conviviali in famiglia o con amici. L'ambiente è accogliente e ben distribuito, con accesso diretto al cortile privato esterno. Completa il piano un servizio dotato di wc.

Il secondo piano ospita la zona notte, composta da due camere da letto (una matrimoniale e una singola) e un bagno finestrato completo, dotato di doccia.

Al livello superiore, una graziosa stanza mansardata offre uno spazio versatile, ideale come studio, camera per gli ospiti o zona relax. Completano il piano un locale tecnico/lavanderia con doccia, pensato per massimizzare la funzionalità della casa.

La casa è perfetta per chi desidera spazi ben distribuiti su più livelli, con ambienti distinti per ogni esigenza della vita quotidiana.

Esternamente oltre al cortile privato è presente un posto auto privato ed un locale utilizzabile come deposito.

L'immobile è frutto di una recente ristrutturazione, a partire dal tetto, i serramenti, l'impiantistica, cappotto interno e la pavimentazione.

Mostra tutto

Nelle vicinanze

Trasporto pubblico Trasporto pubblico
Trasporto pubblico
610 m
Scuole Scuole
Istituto Comprensivo Giovanni XXIII - Scuola Secondaria di Primo Grado
420 m
Istituto D'Istruzione Superiore G. Cossali
2,4 Km
Supermercati Supermercati
Coop
310 m
Bar Bar
Jigger Food and Drink
380 m
River Club
1,3 Km
Ristoranti Ristoranti
Ristorante Pizzeria ADAMO
80 m
Antica Rocca
160 m
Enoteca i 5 Frati - Vineria, Cocktail, Ristorante
210 m
Molino San Giuseppe 1228 - Borgo Dei Sapori
410 m
La Cantina
700 m
Mostra tutto

Caratteristiche

Rif.:
61119249
Piano:
3 di 3 (Piano su più livelli)
Posti auto:
1
Camere da letto:
3
Arredamento:
Assente
Condizionamento:
Predisposizione impianto
Mostra tutto
Prezzo Prezzo
€ 219.000
Rata mutuo Rata mutuo
€ 1.012 / mese
Spese annue Spese annue
€ 0
Proponi il tuo prezzoProponi il tuo prezzo

Classe Energetica

A1
A1
A1
A1
A1
A1
A1
A1
A1
EP globale non rinnovabile:
71.60 kW h/m² anno
EP globale rinnovabile:
71.60 kW h/m² anno
Anno di costruzione:
1960
Riscaldamento:
Autonomo
Tipo impianto:
A pavimento
Tipo alimentazione:
Metano

Ti interessa visionare l'immobile?

Fissa un appuntamento  Fissa un appuntamento

Richiedi informazioni

* Questi campi sono obbligatori

Calcola il tuo mutuo

Semplice e senza impegno
Anticipo

( % )
Mutuo

( % )

pochi semplici passi

inserisci i tuoi dati
Questionario completato
Grazie per aver richiesto un appuntamento senza impegno con un nostro Consulente del Credito e Assicurativo.

Hai inserito correttamente tutti i dati necessari e a breve riceverai una e-mail con un link da convalidare per inviare i tuoi dati.
Affiliato
Tecnosoncino Srl
Via Padre Mario Zanardi, 1 26029 Soncino (CR)

Il nostro staff


  • Michele Tavelli
    Affiliato

  • Morris Belloni
    Collaboratore
Via Padre Mario Zanardi, 1 26029 Soncino (CR)
Zona: Soncino - Romanengo - Ticengo
Mostra su mappa
Orari: da lun. a ven. 9:00-12:30/ 14:30-20:00 - sab. 9:00-12:30 / 14:30-18:00
Affiliato
Tecnosoncino Srl
Via Padre Mario Zanardi, 1 26029 Soncino (CR)

2025 Tecnocasa Franchising S.p.A. - P. IVA 08365160152 - Via Monte Bianco 60/A 20089 Rozzano (MI). Ogni agenzia ha un proprio titolare ed è autonoma. Privacy policy | Policy utilizzo | Cookie policy