Trilocale in vendita

Soncino, Via Benzoni - Gallignano
€ 105.000
3 locali 3 locali
78 Mq 78 Mq
1 bagno 1 bagno

Trilocale in vendita

Soncino, Via Benzoni - Gallignano

Descrizione annuncio

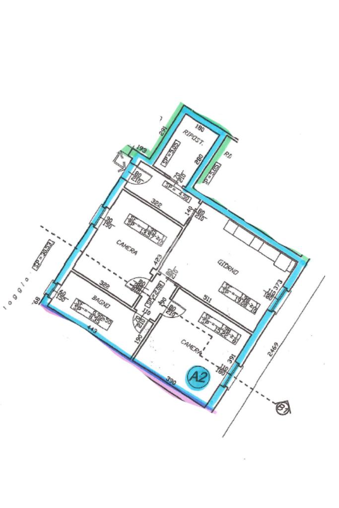
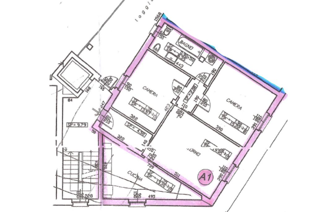
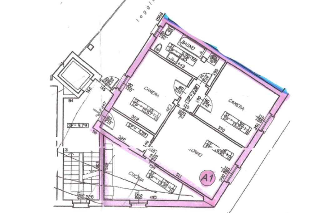
SONCINO fraz. GALLIGNANO: Nuovi appartamenti ristrutturati al primo piano – Prezzi a partire da Euro 105.000

In contesto tranquillo e ben curato, proponiamo in vendita tre appartamenti trilocali situati al piano primo, completamente ristrutturati con consegna prevista in pochi mesi.

Le soluzioni hanno superfici di: 77 mq, 66 mm e 78 mq inoltre due dei tre immobili sono dotati di lavanderiaripostiglio.

Gli immobili verranno consegnati completamente ristrutturati a nuovo, con particolare attenzione al comfort abitativo e all’efficienza energetica. Le dotazioni includono:

Riscaldamento a pavimento

Predisposizione per aria condizionata

Serramenti nuovi in PVC ad alta efficienza

Possibilità di personalizzare le finiture interne

Posto auto privato interno alla corte

Soluzioni ideali sia come prima abitazione che come investimento, grazie alla posizione all’ultimo piano e alla qualità della ristrutturazione.

Per maggiori informazioni, planimetrie e dettagli sulle finiture disponibili, non esitate a contattarci.

Al piano secondo ed ultimo sono presenti altri tre appartamenti di medesime dimensioni e disposizione allo stesso prezzo.

Mostra tutto

Caratteristiche

Rif.:
61182519
Piano:
1 di 2 (Piano medio)
Posti auto:
1
Camere da letto:
2
Arredamento:
Assente
Condizionamento:
Autonomo
Mostra tutto
Prezzo Prezzo
€ 105.000
Rata mutuo Rata mutuo
€ 495 / mese
Spese annue Spese annue
€ 20
Proponi il tuo prezzoProponi il tuo prezzo

Classe Energetica

Questo immobile è esente da classe energetica
Anno di costruzione:
2005
Riscaldamento:
Autonomo
Tipo impianto:
A pavimento
Tipo alimentazione:
Metano

Ti interessa visionare l'immobile?

Fissa un appuntamento  Fissa un appuntamento

Richiedi informazioni

Clicca su Leggi per aprire l'informativa
* Questi campi sono obbligatori

Calcola il tuo mutuo

Semplice e senza impegno
Anticipo

( % )
Mutuo

( % )

pochi semplici passi

inserisci i tuoi dati
Questionario completato
Grazie per aver richiesto un appuntamento senza impegno con un nostro Consulente del Credito e Assicurativo.

Hai inserito correttamente tutti i dati necessari e a breve riceverai una e-mail con un link da convalidare per inviare i tuoi dati.
Affiliato
Tecnosoncino Srl
Via Padre Mario Zanardi, 1 26029 Soncino (CR)

Il nostro staff


  • Michele Tavelli
    Affiliato

  • Morris Belloni
    Collaboratore
Via Padre Mario Zanardi, 1 26029 Soncino (CR)
Zona: Soncino - Romanengo - Ticengo
Mostra su mappa
Orari: da lun. a ven. 9:00-12:30/ 14:30-20:00 - sab. 9:00-12:30 / 14:30-18:00
Affiliato
Tecnosoncino Srl
Via Padre Mario Zanardi, 1 26029 Soncino (CR)

2026 Tecnocasa Franchising S.p.A. - P. IVA 08365160152 - Via Monte Bianco 60/A 20089 Rozzano (MI). Ogni agenzia ha un proprio titolare ed è autonoma. Privacy policy | Policy utilizzo | Cookie policy