Quadrilocale in vendita

Soncino, Via Melotta
€ 69.000
4 locali 4 locali
108 Mq 108 Mq
1 bagno 1 bagno

Quadrilocale in vendita

Soncino, Via Melotta

Descrizione annuncio

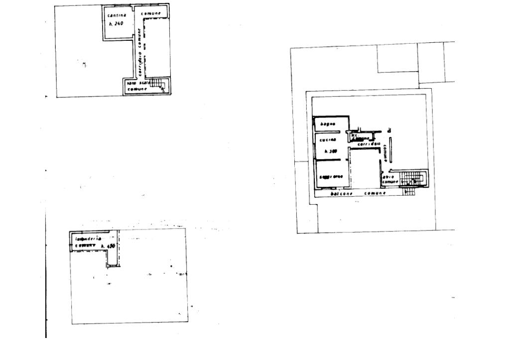
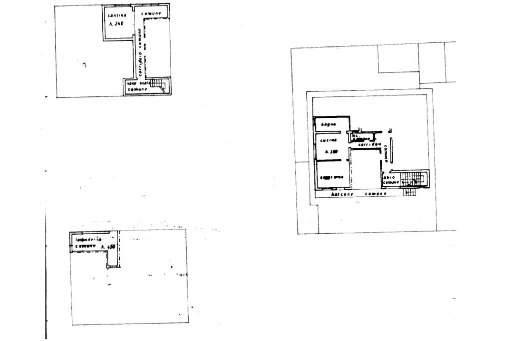
SONCINO: POSSIBILITA' DI RICAVARE DUE APPARTAMENTI BILOCALI DA METTERE A REDDITO.

in contesto tranquillo composto da sole tre unità abitative, proponiamo appartamento disposto su due livelli, situato al piano rialzato. Il contesto si trova in zona residenziale del paese a pochi passi dai servizi principali.

L’ingresso conduce alla zona giorno, posta al piano terra, composta da salotto luminoso con accesso al balcone, cucina separata e bagno finestrato con vasca.

Tramite scala in comune con le altre due unità si accede al piano primo, dove si sviluppa la zona notte: qui troviamo due camere da letto matrimoniali, entrambe dotate di balcone, ideali per garantire comfort e luminosità.

Completano la proprietà una cantina al piano interrato, un box singolo e una area esterna comune, utilizzabile come spazio verde o di relax.

A livello di interventi è stato rifatto il tetto nel 2015 e parte dell'impianto gas nel 2024 oltre al rifacimento della facciata esterna.

Soluzione ideale per chi cerca un’abitazione in un contesto riservato di poche unità, con spazi accessori comodi e funzionali.

Mostra tutto

Nelle vicinanze

Trasporto pubblico Trasporto pubblico
Trasporto pubblico
1,2 Km
Scuole Scuole
Istituto Comprensivo Giovanni XXIII - Scuola Secondaria di Primo Grado
420 m
Supermercati Supermercati
Coop
330 m
Bar Bar
Jigger Food and Drink
270 m
River Club
1,9 Km
Ristoranti Ristoranti
Antica Rocca
550 m
Ristorante Pizzeria ADAMO
560 m
Enoteca i 5 Frati - Vineria, Cocktail, Ristorante
780 m
Molino San Giuseppe 1228 - Borgo Dei Sapori
810 m
La Cantina
1,3 Km
Mostra tutto

Caratteristiche

Rif.:
61165439
Piano:
1 di 2 (Piano su più livelli)
Box:
1
Balconi:
2
Camere da letto:
2
Arredamento:
Assente
Mostra tutto
Prezzo Prezzo
€ 69.000
Rata mutuo Rata mutuo
€ 325 / mese
Spese annue Spese annue
€ 150
Proponi il tuo prezzoProponi il tuo prezzo

Classe Energetica

G
G
G
G
G
G
G
G
G
EP globale non rinnovabile:
471.62 kW h/m² anno
EP invernale del fabbricato:
EP estiva del fabbricato:
Anno di costruzione:
1970
Riscaldamento:
Autonomo
Tipo impianto:
A radiatori
Tipo alimentazione:
Metano

Ti interessa visionare l'immobile?

Fissa un appuntamento  Fissa un appuntamento

Richiedi informazioni

Clicca su Leggi per aprire l'informativa
* Questi campi sono obbligatori

Calcola il tuo mutuo

Semplice e senza impegno
Anticipo

( % )
Mutuo

( % )

pochi semplici passi

inserisci i tuoi dati
Questionario completato
Grazie per aver richiesto un appuntamento senza impegno con un nostro Consulente del Credito e Assicurativo.

Hai inserito correttamente tutti i dati necessari e a breve riceverai una e-mail con un link da convalidare per inviare i tuoi dati.
Affiliato
Tecnosoncino Srl
Via Padre Mario Zanardi, 1 26029 Soncino (CR)

Il nostro staff


  • Michele Tavelli
    Affiliato

  • Morris Belloni
    Collaboratore
Via Padre Mario Zanardi, 1 26029 Soncino (CR)
Zona: Soncino - Romanengo - Ticengo
Mostra su mappa
Orari: da lun. a ven. 9:00-12:30/ 14:30-20:00 - sab. 9:00-12:30 / 14:30-18:00
Affiliato
Tecnosoncino Srl
Via Padre Mario Zanardi, 1 26029 Soncino (CR)

2026 Tecnocasa Franchising S.p.A. - P. IVA 08365160152 - Via Monte Bianco 60/A 20089 Rozzano (MI). Ogni agenzia ha un proprio titolare ed è autonoma. Privacy policy | Policy utilizzo | Cookie policy