Bilocale in vendita

Soncino, Via Milano
€ 129.000
2 locali 2 locali
90 Mq 90 Mq
1 bagno 1 bagno

Bilocale in vendita

Soncino, Via Milano

Descrizione annuncio

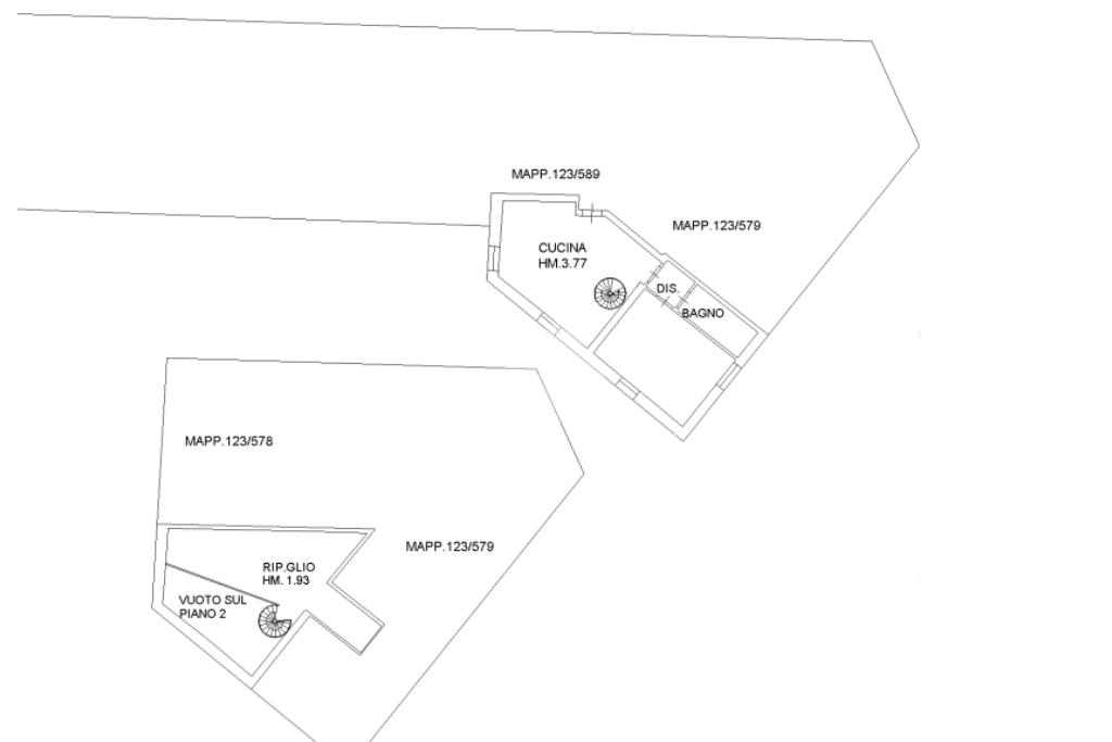
SONCINO: in contesto residenziale dei primi anni 2000, proponiamo in vendita un luminoso bilocale situato al secondo piano servito da ascensore, ideale per chi cerca comfort e funzionalità in un ambiente moderno.

L’ingresso si apre su una zona giorno open space, ampia e accogliente, recentemente valorizzata con un elegante pavimento in resina, che conferisce un tocco contemporaneo agli ambienti. Un soppalco a vista affacciato sul salotto offre uno spazio aggiuntivo versatile, ideale come studio, area relax o zona hobby.

La camera matrimoniale, rifinita con parquet, garantisce un’atmosfera calda e accogliente. Il bagno è dotato di doccia, ben rifinito e funzionale. Presente anche un comodo ripostiglio sul pianerottolo.

L’immobile è dotato di impianto di raffrescamento tramite split aria condizionata: uno posizionato sul soppalco e uno nella camera da letto, per garantire il massimo comfort in ogni ambiente.

Completano la proprietà:

Box singolo

Posto auto coperto e privato

Cantina

Ottima soluzione in zona tranquilla e ben servita, perfetta sia come abitazione principale che come investimento.

Mostra tutto

Nelle vicinanze

Trasporto pubblico Trasporto pubblico
Trasporto pubblico
1,0 Km
Scuole Scuole
Istituto Comprensivo Giovanni XXIII - Scuola Secondaria di Primo Grado
220 m
Istituto D'Istruzione Superiore G. Cossali
2,8 Km
Supermercati Supermercati
Coop
210 m
Bar Bar
Jigger Food and Drink
100 m
River Club
1,7 Km
Ristoranti Ristoranti
Antica Rocca
360 m
Ristorante Pizzeria ADAMO
390 m
Enoteca i 5 Frati - Vineria, Cocktail, Ristorante
590 m
Molino San Giuseppe 1228 - Borgo Dei Sapori
610 m
La Cantina
1,1 Km
Mostra tutto

Caratteristiche

Rif.:
61127030
Piano:
2 di 2 con ascensore (ultimo Piano)
Box:
1
Posti auto:
1
Camere da letto:
1
Arredamento:
Assente
Mostra tutto
Prezzo Prezzo
€ 129.000
Rata mutuo Rata mutuo
€ 595 / mese
Spese annue Spese annue
€ 800
Proponi il tuo prezzoProponi il tuo prezzo

Classe Energetica

E
E
E
E
E
E
E
E
E
EP invernale del fabbricato:
EP estiva del fabbricato:
Anno di costruzione:
2005
Riscaldamento:
Autonomo
Tipo impianto:
A radiatori
Tipo alimentazione:
Metano

Ti interessa visionare l'immobile?

Fissa un appuntamento  Fissa un appuntamento

Richiedi informazioni

* Questi campi sono obbligatori

Calcola il tuo mutuo

Semplice e senza impegno
Anticipo

( % )
Mutuo

( % )

pochi semplici passi

inserisci i tuoi dati
Questionario completato
Grazie per aver richiesto un appuntamento senza impegno con un nostro Consulente del Credito e Assicurativo.

Hai inserito correttamente tutti i dati necessari e a breve riceverai una e-mail con un link da convalidare per inviare i tuoi dati.
Affiliato
Tecnosoncino Srl
Via Padre Mario Zanardi, 1 26029 Soncino (CR)

Il nostro staff


  • Michele Tavelli
    Affiliato

  • Morris Belloni
    Collaboratore
Via Padre Mario Zanardi, 1 26029 Soncino (CR)
Zona: Soncino - Romanengo - Ticengo
Mostra su mappa
Orari: da lun. a ven. 9:00-12:30/ 14:30-20:00 - sab. 9:00-12:30 / 14:30-18:00
Affiliato
Tecnosoncino Srl
Via Padre Mario Zanardi, 1 26029 Soncino (CR)

2025 Tecnocasa Franchising S.p.A. - P. IVA 08365160152 - Via Monte Bianco 60/A 20089 Rozzano (MI). Ogni agenzia ha un proprio titolare ed è autonoma. Privacy policy | Policy utilizzo | Cookie policy