Porzione di bifamiliare in vendita

Romanengo, Via Soresina
€ 280.000
6 locali 6 locali
220 Mq 220 Mq
2 bagni 2 bagni

Porzione di bifamiliare in vendita

Romanengo, Via Soresina

Descrizione annuncio

ROMANENGO: proponiamo in vendita porzione di bifamiliare in Classe A4 indipendente su tre lati, completamente ristrutturata con attenzione al risparmio energetico e al comfort abitativo grazie al gas free.

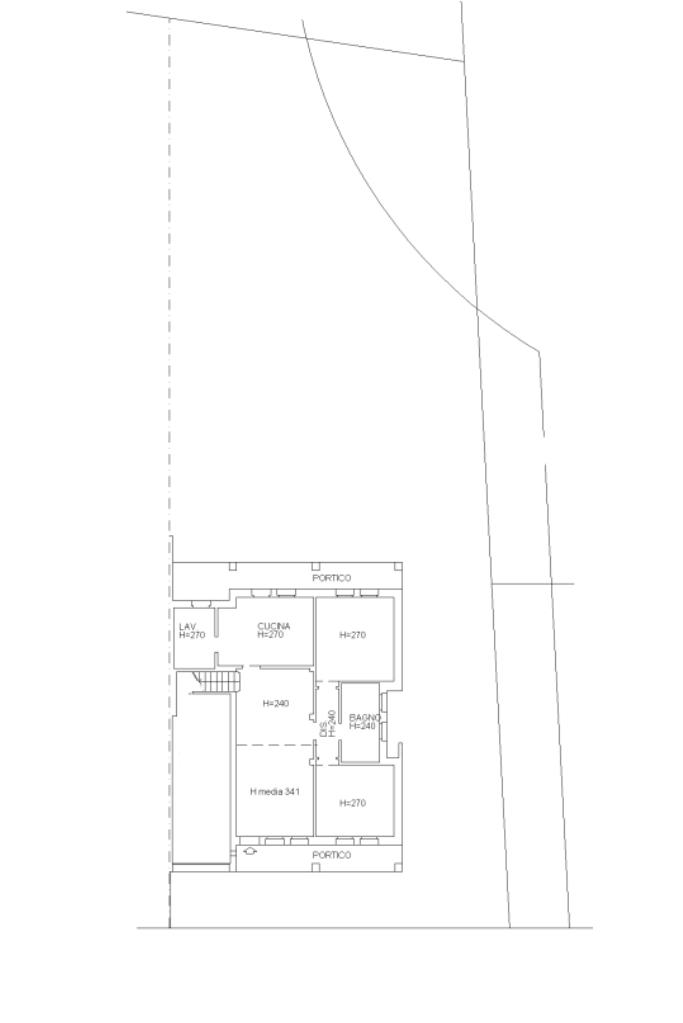
E' situata in zona tranquilla e residenziale e si sviluppa su due livelli. Il piano terra, da 100mq, ospita un luminoso soggiorno, una cucina abitabile separata, una pratica lavanderia servita di doccia, due ampie camere matrimoniali ed un bagno finestrato con vasca.

La proprietà è impreziosita da un giardino piantumato di oltre 500 mq al quale si può accedere dalla cucina e dalla lavanderia; è curato e ben organizzato, con spazi verdi ideali per il tempo libero, il gioco dei bambini o cene all’aperto. Le generose dimensioni del giardino consentono l’installazione di una piscina, rendendo l’area esterna perfetta per il relax e la convivialità durante la bella stagione.

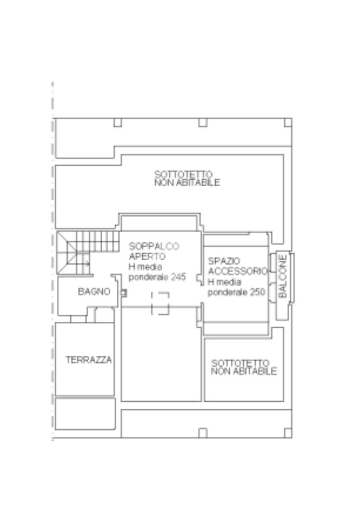
Al piano primo, un elegante soppalco a vista sulla zona giorno conduce ad un studio, un secondo bagno ed una terrazza a portafoglio abitabile. Completa la proprietà un garage al piano terra da circa 20mq.

L’immobile è stato oggetto di un'importante ristrutturazione che ha riguardato:

Cappotto termico esterno

Serramenti in PVC di nuova generazione con zanzariere integrate

Ventilazione meccanica controllata (VMC)

Pompa di calore

Impianto fotovoltaico da 10 kW

Domotica per il controllo dei termosifoni, che consente la gestione intelligente della temperatura ambiente.

Mostra tutto

Nelle vicinanze

Trasporto pubblico Trasporto pubblico
Trasporto pubblico
290 m
Scuole Scuole
Scuole
2,4 Km
Farmacia Farmacia
Farmacia Caffi
340 m
Negozi Negozi
Panettiere Mordenti
280 m
Bar Bar
Caffè dei Portici
290 m
Bar Italia
290 m
Sister's Bar
660 m
Ristoranti Ristoranti
Pizzeria D'Asporto Cleopatra
310 m
Ristorante Pizzeria Harlem
370 m
Nonna Dina
500 m
Agriturismo "IL CASCINETTO": carne di STRUZZO
2,4 Km
Mostra tutto

Caratteristiche

Rif.:
61123734
Piano:
2 di 2 (Piano su più livelli)
Box:
1
Posti auto:
2
Balconi:
1
Terrazzi:
1
Mostra tutto
Prezzo Prezzo
€ 280.000
Rata mutuo Rata mutuo
€ 1.294 / mese
Spese annue Spese annue
€ 0
Proponi il tuo prezzoProponi il tuo prezzo

Classe Energetica

A4
A4
A4
A4
A4
A4
A4
A4
A4
EP globale non rinnovabile:
44.65 kW h/m² anno
EP globale rinnovabile:
44.65 kW h/m² anno
EP invernale del fabbricato:
EP estiva del fabbricato:
Anno di costruzione:
2004
Riscaldamento:
Autonomo
Tipo impianto:
A radiatori
Tipo alimentazione:
Pannelli

Ti interessa visionare l'immobile?

Fissa un appuntamento  Fissa un appuntamento

Richiedi informazioni

* Questi campi sono obbligatori

Calcola il tuo mutuo

Semplice e senza impegno
Anticipo

( % )
Mutuo

( % )

pochi semplici passi

inserisci i tuoi dati
Questionario completato
Grazie per aver richiesto un appuntamento senza impegno con un nostro Consulente del Credito e Assicurativo.

Hai inserito correttamente tutti i dati necessari e a breve riceverai una e-mail con un link da convalidare per inviare i tuoi dati.
Affiliato
Tecnosoncino Srl
Via Padre Mario Zanardi, 1 26029 Soncino (CR)

Il nostro staff


  • Michele Tavelli
    Affiliato

  • Morris Belloni
    Collaboratore
Via Padre Mario Zanardi, 1 26029 Soncino (CR)
Zona: Soncino - Romanengo - Ticengo
Mostra su mappa
Orari: da lun. a ven. 9:00-12:30/ 14:30-20:00 - sab. 9:00-12:30 / 14:30-18:00
Affiliato
Tecnosoncino Srl
Via Padre Mario Zanardi, 1 26029 Soncino (CR)

2025 Tecnocasa Franchising S.p.A. - P. IVA 08365160152 - Via Monte Bianco 60/A 20089 Rozzano (MI). Ogni agenzia ha un proprio titolare ed è autonoma. Privacy policy | Policy utilizzo | Cookie policy