Villa a schiera in vendita

Fontanella, Via Monsignor Oscar Romero
€ 199.000
5 locali 5 locali
222 Mq 222 Mq
2 bagni 2 bagni

Villa a schiera in vendita

Fontanella, Via Monsignor Oscar Romero

Descrizione annuncio

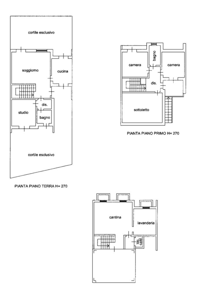
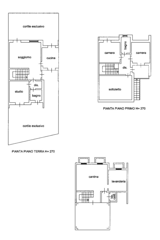
FONTANELLA: in tranquilla e ricercata zona residenziale del paese, proponiamo in vendita villetta a schiera centrale caratterizzata da ottime metrature, ambienti luminosi e spazi funzionali, ideale per famiglie o per chi desidera vivere in un contesto sereno e ben collegato ai principali servizi.

L’abitazione si sviluppa su più livelli e dispone di giardino privato e ingresso indipendente.

All’ingresso troviamo un’ampia e luminosa zona living open space, con soggiorno e cucina a vista, perfettamente integrati in un ambiente accogliente.
Dal soggiorno si accede direttamente al giardino privato, ideale per momenti di relax, pranzi all’aperto o per chi ha bambini e animali domestici.
Completano il piano una camera da letto (utilizzabile anche come studio o stanza ospiti) un servizio dotato di doccia ed una zona lavanderia comoda e ben organizzata.

Al piano superiore si sviluppa la zona notte, composta da due camere da letto, ed una stanza sottotetto tutte dotate di ottima luminosità e spazi ben distribuiti.
Il piano è servito da un bagno finestrato, completo di vasca.

Al piano seminterrato si trovano un ampio garage con comodo accesso carraio, una spaziosa taverna perfetta per cene in compagnia o come area relax, e una cantina ideale come dispensa o locale di deposito.

La soluzione è infine dotata di impianto fotovoltaico da 4,6KW per la produzione di energia elettrica.

Mostra tutto

Nelle vicinanze

Trasporto pubblico Trasporto pubblico
Trasporto pubblico
2,8 Km
Farmacia Farmacia
Farmacia Antonioli
2,5 Km
Supermercati Supermercati
SuperDì
2,0 Km
Bennet
2,6 Km
Negozi Negozi
H&M
2,5 Km
Ristoranti Ristoranti
Half Crown Pub
2,1 Km
Cleopatra
2,3 Km
Caio
2,4 Km
RoadHouse
2,5 Km
Caffè Napoli Exytus
2,5 Km
Mostra tutto

Caratteristiche

Rif.:
61131482
Piano:
Su più livelli di 2
Totale piani:
2
Box:
1
Posti auto:
1
Balconi:
1
Mostra tutto
Prezzo Prezzo
€ 199.000
Rata mutuo Rata mutuo
€ 939 / mese
Spese annue Spese annue
€ 0
Proponi il tuo prezzoProponi il tuo prezzo

Classe Energetica

F
F
F
F
F
F
F
F
F
EP globale non rinnovabile:
278.60 kW h/m² anno
EP invernale del fabbricato:
EP estiva del fabbricato:
Anno di costruzione:
2000
Riscaldamento:
Autonomo
Tipo impianto:
A radiatori
Tipo alimentazione:
Metano

Ti interessa visionare l'immobile?

Fissa un appuntamento  Fissa un appuntamento

Richiedi informazioni

Clicca su Leggi per aprire l'informativa
* Questi campi sono obbligatori

Calcola il tuo mutuo

Semplice e senza impegno
Anticipo

( % )
Mutuo

( % )

pochi semplici passi

inserisci i tuoi dati
Questionario completato
Grazie per aver richiesto un appuntamento senza impegno con un nostro Consulente del Credito e Assicurativo.

Hai inserito correttamente tutti i dati necessari e a breve riceverai una e-mail con un link da convalidare per inviare i tuoi dati.
Affiliato
Tecnosoncino Srl
Via Padre Mario Zanardi, 1 26029 Soncino (CR)

Il nostro staff


  • Michele Tavelli
    Affiliato

  • Morris Belloni
    Collaboratore
Via Padre Mario Zanardi, 1 26029 Soncino (CR)
Zona: Soncino - Romanengo - Ticengo
Mostra su mappa
Orari: da lun. a ven. 9:00-12:30/ 14:30-20:00 - sab. 9:00-12:30 / 14:30-18:00
Affiliato
Tecnosoncino Srl
Via Padre Mario Zanardi, 1 26029 Soncino (CR)

2025 Tecnocasa Franchising S.p.A. - P. IVA 08365160152 - Via Monte Bianco 60/A 20089 Rozzano (MI). Ogni agenzia ha un proprio titolare ed è autonoma. Privacy policy | Policy utilizzo | Cookie policy