Villa a schiera d'angolo in vendita

Cumignano Sul Naviglio, Via Don Mario Campari
€ 150.000
5 locali 5 locali
120 Mq 120 Mq
2 bagni 2 bagni

Villa a schiera d'angolo in vendita

Cumignano Sul Naviglio, Via Don Mario Campari

Descrizione annuncio

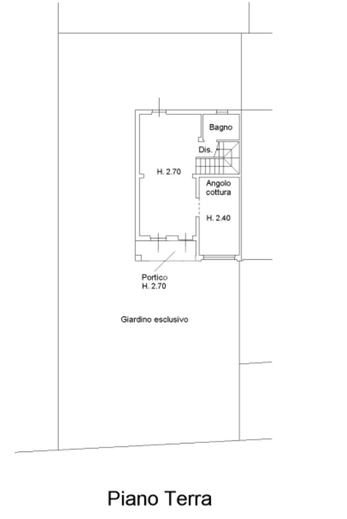
CUMIGNANO SUL NAVIGLIO: proponiamo in vendita villa a schiera laterale, libera su tre lati, circondata da un piacevole giardino privato che garantisce spazi verdi vivibili e ottima luminosità agli ambienti interni.

L’abitazione si sviluppa su due livelli. Al piano terra si trova la zona giorno, composta da un accogliente salotto con camino separato dalla cucina abitabile, soluzione ideale per chi desidera ambienti ben distinti e funzionali. Completa il piano un servizio finestrato con doccia.

Salendo al primo piano si accede alla zona notte, dove sono presenti due camere da letto ed un secondo servizio anch'esso finestrato dotato di vasca. Allo stesso livello è disponibile un ambiente mansardato versatile, perfetto come studio, area smart working o stanza hobby, adattabile alle diverse esigenze familiari.

Soluzione ideale per chi cerca indipendenza, spazi ben organizzati e la comodità di un giardino su tre lati.

Mostra tutto

Nelle vicinanze

Trasporto pubblico Trasporto pubblico
Trasporto pubblico
1,7 Km
Ristoranti Ristoranti
Bar trattoria del Cervo
1,8 Km
Mostra tutto

Caratteristiche

Rif.:
61175331
Piano:
2 di 2 (Piano su più livelli)
Posti auto:
1
Balconi:
1
Camere da letto:
2
Arredamento:
Assente
Mostra tutto
Prezzo Prezzo
€ 150.000
Rata mutuo Rata mutuo
€ 707 / mese
Spese annue Spese annue
€ 0
Proponi il tuo prezzoProponi il tuo prezzo

Classe Energetica

G
G
G
G
G
G
G
G
G
EP globale non rinnovabile:
241.50 kW h/m² anno
Anno di costruzione:
2002
Riscaldamento:
Autonomo
Tipo impianto:
A radiatori
Tipo alimentazione:
Metano

Ti interessa visionare l'immobile?

Fissa un appuntamento  Fissa un appuntamento

Richiedi informazioni

Clicca su Leggi per aprire l'informativa
* Questi campi sono obbligatori

Calcola il tuo mutuo

Semplice e senza impegno
Anticipo

( % )
Mutuo

( % )

pochi semplici passi

inserisci i tuoi dati
Questionario completato
Grazie per aver richiesto un appuntamento senza impegno con un nostro Consulente del Credito e Assicurativo.

Hai inserito correttamente tutti i dati necessari e a breve riceverai una e-mail con un link da convalidare per inviare i tuoi dati.
Affiliato
Tecnosoncino Srl
Via Padre Mario Zanardi, 1 26029 Soncino (CR)

Il nostro staff


  • Michele Tavelli
    Affiliato

  • Morris Belloni
    Collaboratore
Via Padre Mario Zanardi, 1 26029 Soncino (CR)
Zona: Soncino - Romanengo - Ticengo
Mostra su mappa
Orari: da lun. a ven. 9:00-12:30/ 14:30-20:00 - sab. 9:00-12:30 / 14:30-18:00
Affiliato
Tecnosoncino Srl
Via Padre Mario Zanardi, 1 26029 Soncino (CR)

2026 Tecnocasa Franchising S.p.A. - P. IVA 08365160152 - Via Monte Bianco 60/A 20089 Rozzano (MI). Ogni agenzia ha un proprio titolare ed è autonoma. Privacy policy | Policy utilizzo | Cookie policy